Leased

71 Baird St, Brighton East

Under Application

5 2 2

Under Application

 

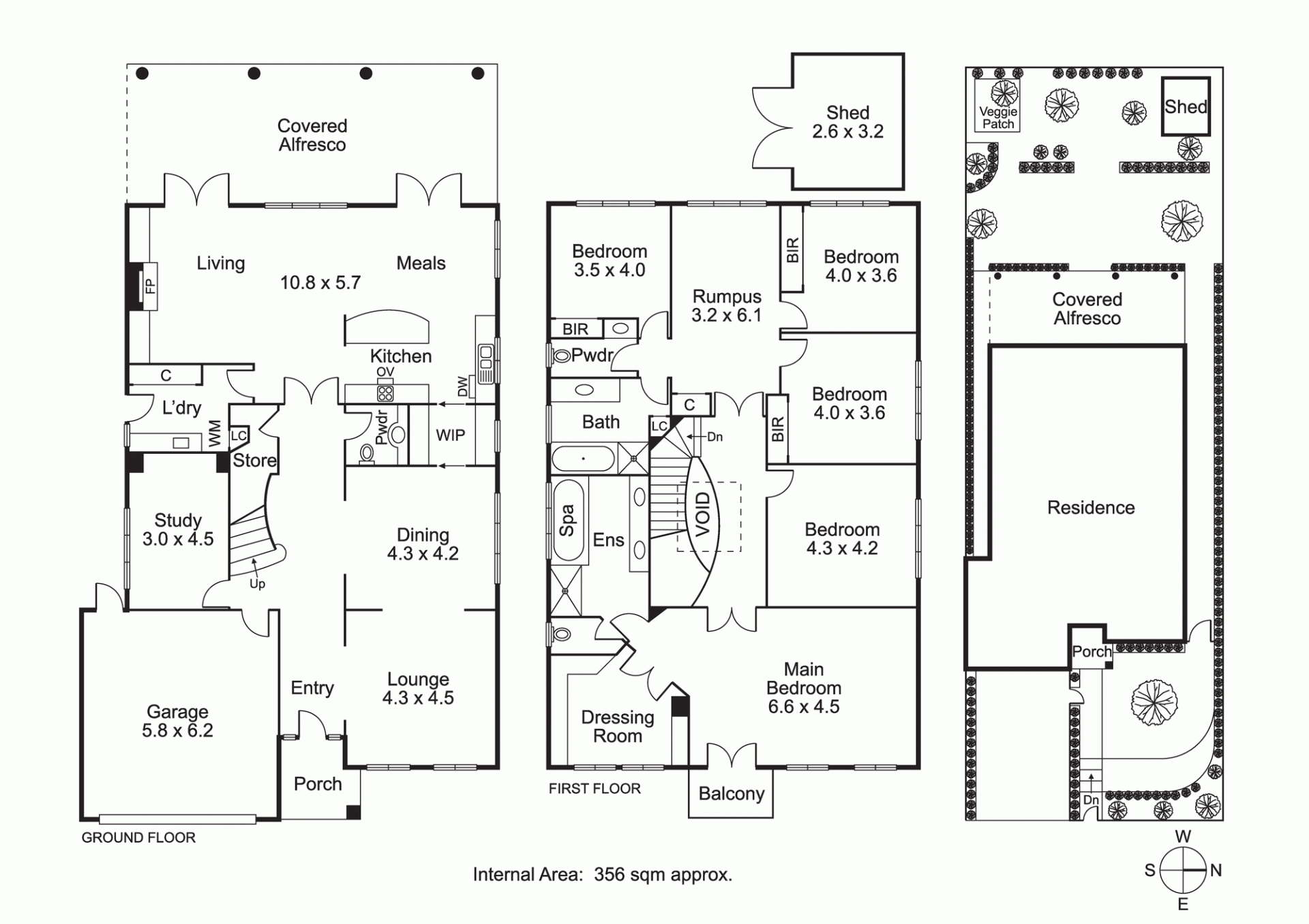
Promising a lifestyle of comfort, space and sophistication, this impressive five-bedroom plus study family home delivers exceptional accommodation in a highly sought-after location. Set within beautifully manicured gardens, the quality-built two-storey residence offers generous proportions, multiple living zones and outstanding everyday functionality.

Designed for relaxed family living and entertaining, the home features formal lounge and dining rooms alongside a spacious open-plan living and meals area flowing to a sheltered alfresco zone with cosy gas fireplace. The gourmet kitchen is superbly appointed with a walk-through pantry, premium Miele appliances and sleek granite benchtops.

Upstairs accommodation includes a luxurious master retreat with walk-in robe/dressing room and ensuite, while four further oversized bedrooms are serviced by a central family bathroom and separate powder room. A first-floor living area provides an ideal retreat for children or additional relaxation space.

Comfort is assured year-round with ducted heating, evaporative cooling and ducted vacuum. Additional features include a dedicated home office, large laundry, ample storage, plantation shutters, parquetry flooring, plush carpets and alarm. A double auto garage with internal access and a ground-floor powder room add further convenience.

Ideally located close to Haileybury and St Leonard’s Colleges, within the Brighton Secondary College zone, and moments from Brighton Public Golf Course, Dendy Park, public transport and a range of shopping and dining options.

At a glance

·         Five bedrooms plus study, 2.5 bathrooms

·         Multiple formal and informal living zones

·         Gourmet kitchen with Miele appliances and walk-through pantry

·         Alfresco entertaining area with gas fireplace

·         Double auto garage with internal access

·         Prestigious school zones and excellent lifestyle amenities nearby

 

 

Details

Available Wednesday 11 February 2026
Address 71 Baird St, Brighton East
Price Under Application
Property Type Rental
Property ID 3360
Category House

Share

Alan McGillivray photo

Alan McGillivray

0419 300 604