Just Listed

2, 35 Black St, Brighton

$1100 per week

2 1 2

Style And Space in The Heart of Brighton

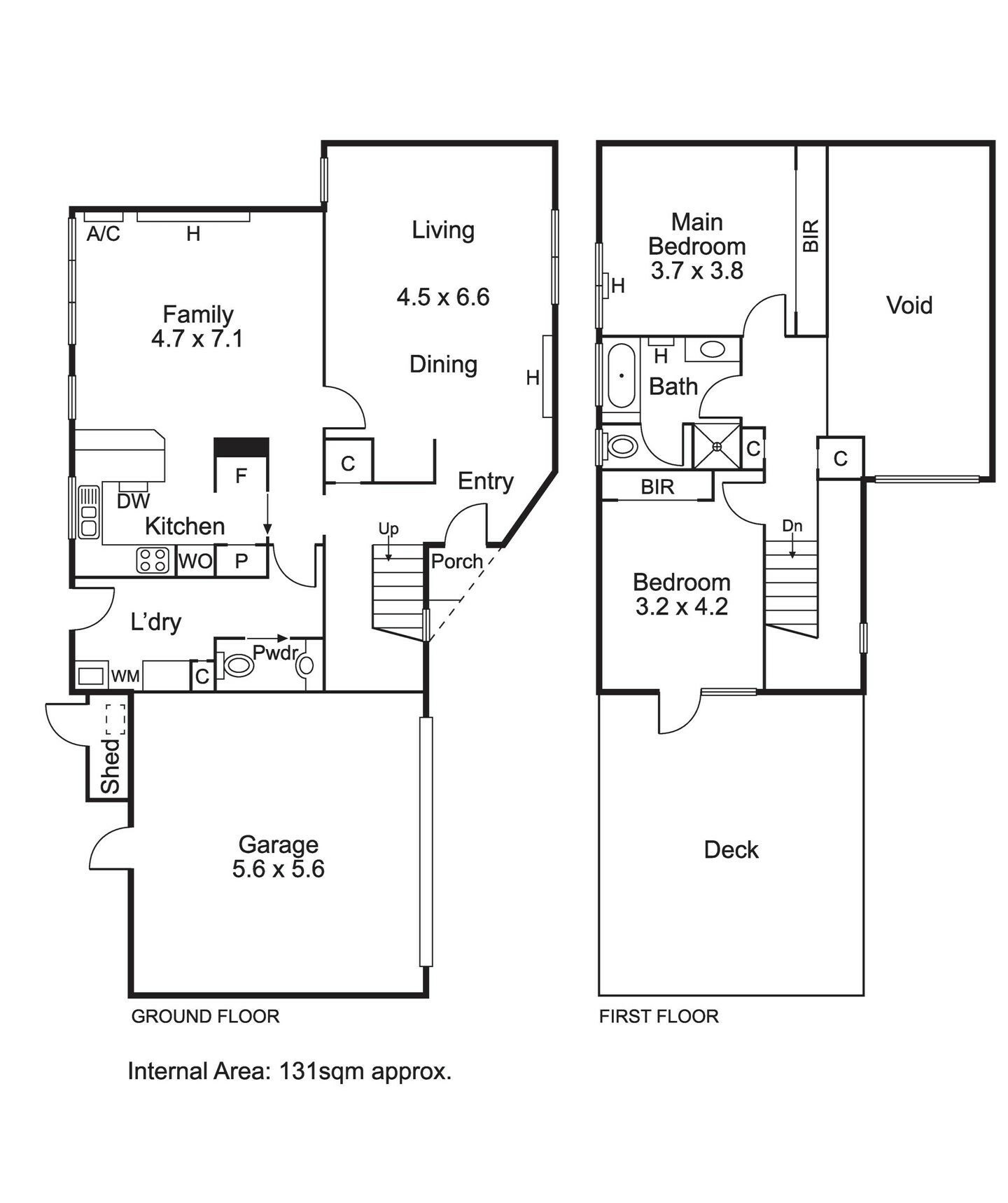
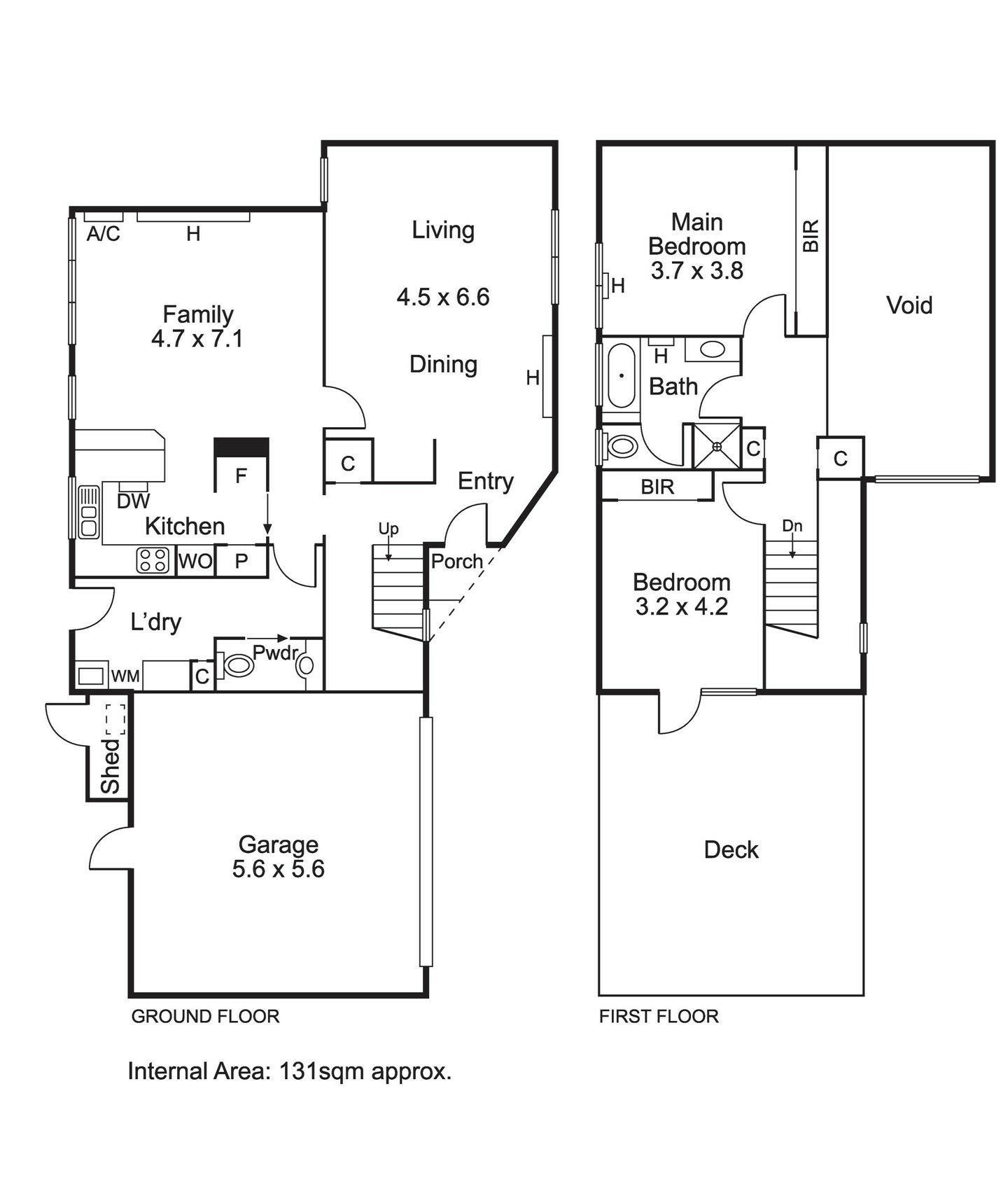
This elegant and pristine property offers a wonderful opportunity for easy living on the edge of Church Street. Located in a tightly held and beautifully maintained complex, the sun-drenched interior soars high with vaulted ceilings upon entry, creating a sensational sense of space and light. A free flowing & flexible design connects the generous and stunning formal lounge with the north-west facing casual meals and living area. The updated kitchen is well appointed with gas cooktop, wall oven, dishwasher and extensive storage. Completing the ground level is a separate powder room & full-size laundry with external access to the rear yard.

The wonderful light continues upstairs through to the well-proportioned accommodation zone, with two generously sized bedrooms with BIR'S (one with an expansive private terrace) and a fully tiled central bathroom, perfect for young families with a bath, shower, and separate WC. With the comfort of hydronic heating throughout, split system heating & cooling in both bedrooms and on the ground level, the ease of substantial storage options & automatic garage for two cars. Unrivalled in position, only steps to the boutique shopping & dining options of Church Street, BGS and Firbank schools at the end of the street, the CBD door-to-door within a short commute and the renowned Brighton Beach a short stroll away. Leave the car at home, simply move in and enjoy this rare opportunity.

At a glance…

- Open plan zone to live, dine & entertain

- Modern kitchen with wrap around benchtops, gas cooktop, oven & ample storage

- 2 good sized bedrooms with split systems – second bedroom with access to a huge private terrace

- Beautiful north westerly facing courtyard/garden

- Split system heating & cooling and hydronic heating throughout

- Timber floors & near new sisal carpet

- Full size laundry with external access

- Alarm system

- Automatic garage parking for 2 cars

- Lock & leave lifestyle

Please contact Rachael for a private inspection on 0448221236 or rachael@nickjohnstone.com.au

Details

Available Monday 15 December 2025
Address 2, 35 Black St, Brighton
Price $1100 per week
Property Type Rental
Property ID 3318
Category House

Share

Rachael Cavallaro photo

Rachael Cavallaro

0448 221 236