8 Janet Court, Portsea

$1,750,000-$1,925,000

3 2 3 757 m2

Inspect

Inspections

Saturday 6 December 11:30 AM - 12:00 PM

Sunday 7 December 11:30 AM - 12:00 PM

A Sophisticated Coastal Sanctuary in the Heart of Portsea

 

Immerse yourself in the relaxed luxury of coastal living with this beautifully presented weatherboard residence, perfectly positioned in a peaceful court setting just 500 metres (approx.) from the iconic Portsea Back Beach. Combining timeless coastal charm with modern comfort, this home offers a sanctuary for families, holidaymakers, or anyone seeking the ultimate Peninsula escape.

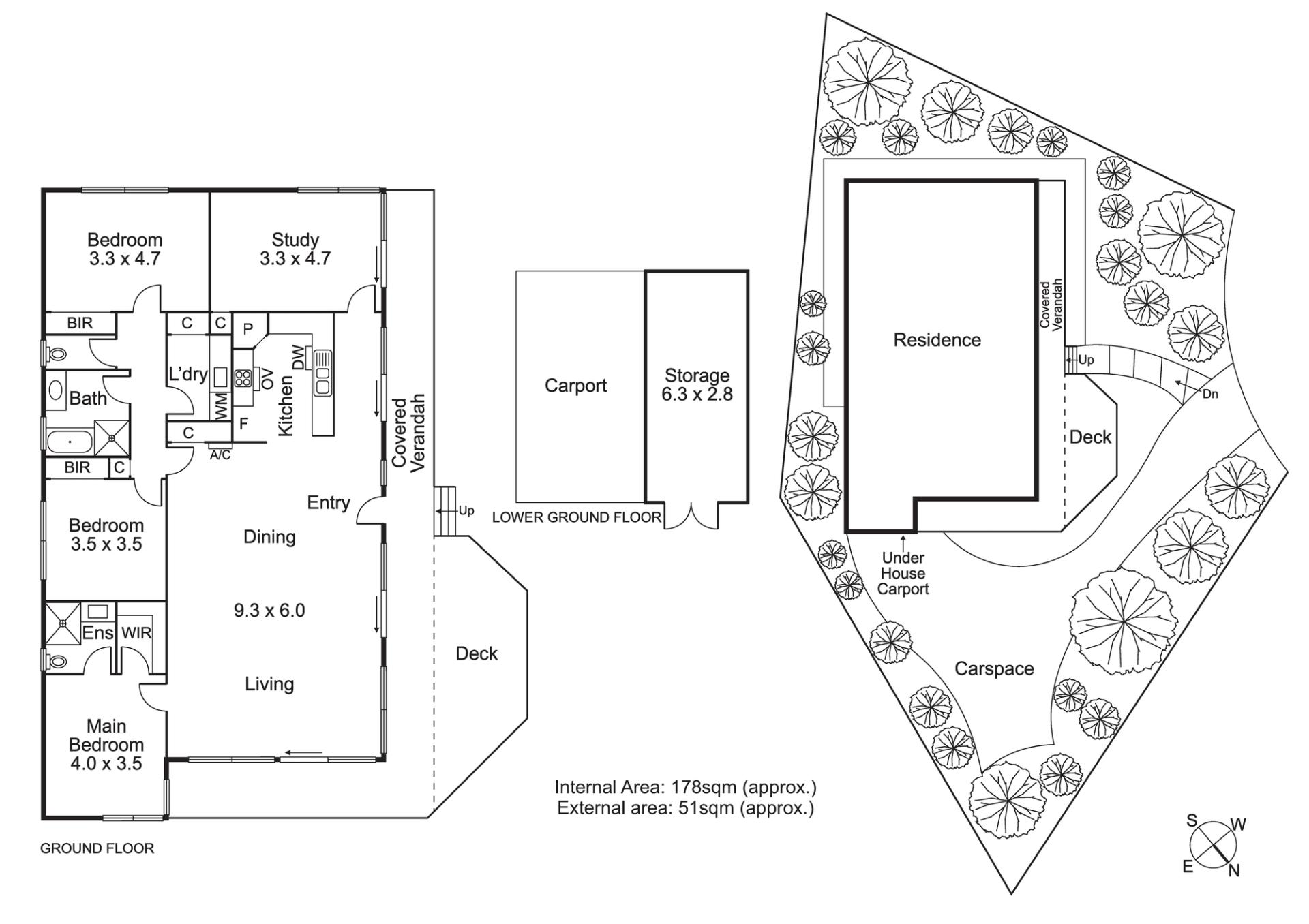
Step inside to discover a spacious open plan living and dining area bathed in natural light, where high ceilings and large windows create a warm and inviting atmosphere. The living space flows seamlessly to the bright, well-appointed kitchen featuring quality appliances, ample bench space, and a generous breakfast bar — the ideal hub for casual meals or entertaining.

A second living room offers flexibility as a private retreat, media room, home office, or optional fourth bedroom, allowing the layout to adapt to your lifestyle needs.

The master suite is thoughtfully positioned for privacy, complete with built-in robes and a stylish ensuite. Two further bedrooms, each with fitted storage, are serviced by a sleek central bathroom and laundry, ensuring practicality for family living or guests.

Entertaining is effortless on the expansive deck that opens directly from the main living zone — the perfect spot for relaxed outdoor dining, morning coffee, or sunset drinks after a day at the beach. The surrounding gardens are low maintenance, giving you more time to enjoy everything the Peninsula has to offer.

Additional features include:

  • Undercover carport plus additional off-street parking
  • Split-system heating and cooling for year-round comfort
  • Ample storage throughout
  • Paved driveway and easy-care landscaped surrounds

Located moments from Portsea’s vibrant village, the historic Portsea Hotel, surf beaches, and Sorrento’s cafés and boutiques, this residence blends style, comfort, and coastal character in one exceptional package.

 

Details

Address 8 Janet Court, Portsea
Price $1,750,000-$1,925,000
Property Type Residential
Property ID 3316
Category House
Land Area 757 m2

Share

David Urquhart photo

David Urquhart

0418 386 836

Nick Johnstone photo

Nick Johnstone

0414 276 871