Auction

1, 64 Victoria Street, Sandringham

$1,150,000 - $1,265,000

3 1 2

Auction details

Auction

Saturday 15 November, 11:00 AM

Inspect

Inspections

Saturday 25 October 10:00 AM - 10:30 AM

Saturday 1 November 10:00 AM - 10:30 AM

Saturday 8 November 10:00 AM - 10:30 AM

Saturday 15 November 10:30 AM - 11:00 AM

North-Facing, Single-Level Serenity in Unbeatable Location

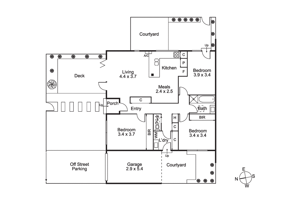
Newly renovated, design-driven, and cleverly configured, this superbly stylish three-bedroom townhouse with street frontage showcases a superior commitment to quality and finish. All you have to do is move in and enjoy easy-care living in the heart of this lifestyle address, moments from the beach, the local village, and within easy walking distance to Sandringham train station.

Beyond the secure intercom entrance and private walled garden, discover a world of effortless luxury bathed in north-facing light. A wonderfully relaxed open-plan living and dining area opens through bi-fold doors to a sun-swept timber deck—spacious enough for both lounge and dining settings. This whole space exudes a carefree attitude, inviting you to step outside and enjoy the fresh air. Entertaining will be a dream in this home!

Under exposed, whitewashed Oregon beams and sloped ceilings, the kitchen is a triumph of high-end convenience, showcasing sleek Smeg appliances, an integrated dishwasher, and a waterfall-edged breakfast bar topped in polished hardwood.

The list of special features is comprehensive. Enjoy a sparkling bathroom, the convenience of a separate laundry, a private rear courtyard, an auto-gated garage plus additional off-street parking, heating and cooling throughout, and a popular neighbourhood with enduring appeal. Offering timeless, easy-care elegance, this home is ideal for those with high expectations, busy lifestyles, and lock-and-leave ambitions. Inspect with confidence today!

At a glance...

  • Three large, light-filled bedrooms (two with built-in robes)

  • Spacious and relaxed open-plan living and dining area

  • Designer kitchen with sleek Smeg appliances, integrated dishwasher, and hardwood breakfast bar

  • Skylit, family-sized bathroom with bath, fully tiled walk-in shower, and stone-topped vanity

  • Separate WC

  • Large laundry with integrated cabinetry

  • Expansive north-facing timber deck, perfect for entertaining

  • Single lock-up, drive-through garage with courtyard access plus additional driveway parking

  • Auto-gated entry to garage

  • Rear courtyard with paving and easy-care lawn

  • Ducted heating and split-system heating and cooling

  • Ample internal storage

  • Secure, gated intercom entry

  • New oak flooring, plush carpets, roller blinds, and blackbutt timber gates

  • Low-maintenance, landscaped front garden with lawn

  • Moments from schools, transport, shopping, parklands, and the beach

Features

Deck Verandah Indoor entertainment area Outdoor entertainment area Low maintenance Close to beach Close to school Secure Parking Built-in wardrobe Garage Floorboards

Details

Address 1, 64 Victoria Street, Sandringham
Price $1,150,000 - $1,265,000
Property Type Residential
Property ID 3301
Category House

Share

Joe Doyle photo

Joe Doyle

0435 937 864

Ella Mactier photo

Ella Mactier

0412 242 228

Bert Geraerts photo

Bert Geraerts

0418 514 090