Just Listed

2 Ross Street, South Melbourne

EXPRESSIONS OF INTEREST CLOSING 13 NOVEMBER

4 3 5

By Appointment Only - call Rachael 0448 221 236

A Taste of New York In Vibrant South Melbourne

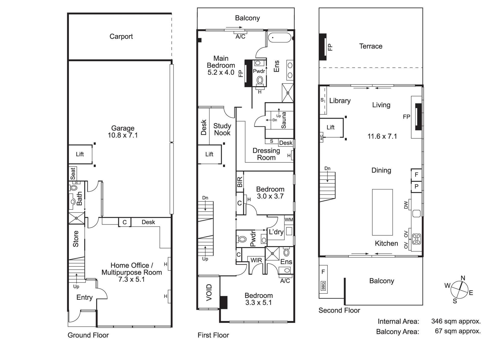
The unassuming façade of this former office building conceals a breathtaking New York loft-style residence – an offering that spans three incredible levels, with Melbourne’s spectacular city skyline forming a colourful and everchanging backdrop to daily living.

Throw open the vibrant red front door to discover an urban paradise where exposed beams and pipes mix with high-end fixture & finishes, and expansive interiors are complemented by a deep alfresco terrace with fireplace and world-class city views.

On entry level, an extremely versatile living area or home office & full bathroom provide the perfect welcome, while a 4-person lift or staircase leads up to the first floor sleeping accommodation. Here, quality wool carpets flow to the peacefully positioned primary suite where a flickering electric fireplace, sophisticated ensuite with Finnish sauna, a fitted walk-in robe/dressing room with Hollywood-mirrored vanity & city-view balcony are all highlights. Two more bedrooms – one with ensuite & walk-in robe – are also located on the home’s middle level along with a dedicated study area, powder room and full laundry.

The residence’s crowning glory is without question its upper-level entertaining zone; a space designed for effortless family relaxation as well as grand-scale entertaining – and one that enjoys unrivalled outlooks both day and night. Bookended by two fabulous terraces - including a BBQ terrace with outdoor kitchen - this impressive space is anchored by a striking industrial-chic kitchen where a single-slab stone island, two premium white Smeg ovens, dual drawer dishwasher and fully integrated fridge and freezer create a culinary setting to envy.

A home simply brimming with standout inclusions, among the additional highlights are heating/cooling, polished concrete floors (upstairs), electric blinds, mud room, video intercom, security cameras and alarm. A remote-controlled gate leads to five private & undercover off-street parking spaces – four of them with lockable/auto roller doors for added security.

Completing a truly unbeatable inner-city package is its location. Clarendon Street and the South Melbourne Market are within an easy stroll, the CBD and Southbank are moments away and transport, major roads and freeways are all easily accessible.    

 

 

At a glance…

  • Sensational New York loft-style residence in unbeatable South Melbourne locale.
  • Three uncompromising levels with spectacular city views.
  • Upper-level entertaining zone with first-class kitchen,
  • BBQ terrace & deep balcony with unforgettable outlooks.
  • Three generous bedrooms – primary suite with electric fireplace, ensuite with sauna, WIR/dressing room and private balcony.
  • An internal lift plus five gated & undercover parking spaces and storage.

 

Features

Balcony Terrace/Paved Indoor entertainment area Outdoor entertainment area Fireplace Bar Skylight Sauna Low maintenance Garage Remote Secure Parking Built-in wardrobe Workshop Air conditioning Dishwasher Intercom system Alarm System Split System Heating Split System Air Conditioning Ensuite Walk in robe Video intercom study Study

Details

Address 2 Ross Street, South Melbourne
Price EXPRESSIONS OF INTEREST CLOSING 13 NOVEMBER
Property Type Residential
Property ID 3293
Category House

Share

Rachael Cavallaro photo

Rachael Cavallaro

0448 221 236

Nick Johnstone photo

Nick Johnstone

0414 276 871

Ella Mactier photo

Ella Mactier

0412 242 228