Auction

2, 182 Reserve Road, Beaumaris

$1,275,000 - $1,325,000 - Enter from Wood Street

3 2 2

Auction details

Auction

Saturday 15 November, 2:00 PM

Inspect

Inspections

Wednesday 29 October 2:30 PM - 3:00 PM

Saturday 1 November 1:00 PM - 1:30 PM

Charming & Spacious 3 Bed 2 Bath with Alfresco Patio in Beaumaris

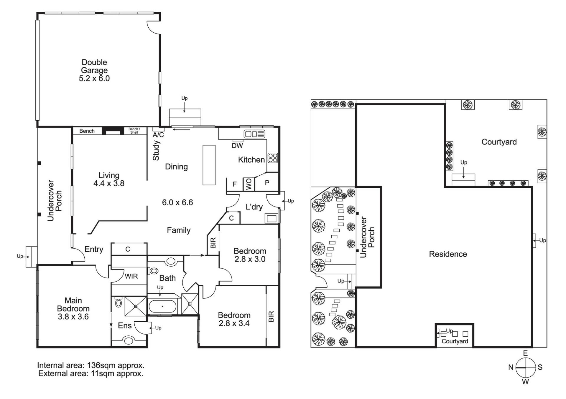
Tucked around the corner off Wood Street, opposite the primary school and metres to the greenery of Royal Melbourne Golf Course, this peaceful street-fronted single-level brick home excites with its low maintenance standalone setting and glorious light-filled interiors. Sure to ignite interest from smaller families, the beautifully presented home is also a perfect downsizer that is close to every needed amenity.

Across a north-facing verandah which is a tranquil spot to soak up the sun, the home reveals lofty ceilings and warm hardwood floors through the inviting spaces. To the front, the formal lounge has a feature heater at it’s heart, whilst alongside the light & bright kitchen is a versatile family/dining area that spills out to an extremely private alfresco patio. Mature trees provide dappled shade to this outdoor space in the warmer months, while it captures the best of the sunshine when needed. 

Inside, the three bedrooms are zoned for harmony with the large main bedroom peacefully positioned to the front where it features a walk-in robe and sparkling ensuite which opens to a private courtyard. Bedrooms two and three are positioned together with the gleaming bathroom to create an ideal kids’ wing – they each offer fitted robes. 

A proper laundry with access to the yard, ceiling fans and split system heating/cooling are on the list of highlights, which is rounded off by a large double auto garage. Literally steps to the bus stop, close to cafes and shops, this sought-after locale is also zoned for Beaumaris and Mentone girls’ secondary colleges and merely moments to the bay.  

At a glance…

  • Peaceful and private 3-BR/2-Bath brick townhouse
  • Zones for Beaumaris Secondary College & Mentone Girls’ Secondary College
  • Standalone low maintenance setting off Wood St
  • Well-presented with dual living areas and a bright kitchen
  • Private alfresco patio
  • Ensuite main bedroom and family bathroom
  • Split system heating/cooling and ceiling fans
  • Double auto garage
  • Just mins from bayside Beaches

 

Features

Verandah Terrace/Paved Courtyard Indoor entertainment area Outdoor entertainment area Low maintenance Garage Remote Close to beach Close to school Secure Parking Built-in wardrobe Dishwasher Split System Air Conditioning Split System Heating Ensuite Garage Walk in robe Floorboards

Details

Address 2, 182 Reserve Road, Beaumaris
Price $1,275,000 - $1,325,000 - Enter from Wood Street
Property Type Residential
Property ID 3284
Category House

Share

Bert Geraerts photo

Bert Geraerts

0418 514 090

Eliza Geraerts photo

Eliza Geraerts

0437 342 003